Indesit BWE 81496X KV UK Bedienungsanleitung
Indesit Waschmaschine BWE 81496X KV UK
Lies die bedienungsanleitung für Indesit BWE 81496X KV UK (7 Seiten) kostenlos online; sie gehört zur Kategorie Waschmaschine. Dieses Handbuch wurde von 23 Personen als hilfreich bewertet und erhielt im Schnitt 4.6 Sterne aus 9 Bewertungen. Hast du eine Frage zu Indesit BWE 81496X KV UK oder möchtest du andere Nutzer dieses Produkts befragen? Stelle eine Frage
Seite 1/7

GB
User Manual
CONTROL PANEL
1.ON/OFF button
2.START/PAUSE button and indicator light
3.TEMPERATURE button
4.DISPLAY
5. buttonCHILD LOCK
6.OPTION button
7. button DELAYED START
8.SPIN button
9.WASH CYCLE SELECTOR KNOB
10.PUSH & GO button
WASH CYCLE TABLE
PRODUCT DESCRIPTION
1.
3.
2.
5.
4.
7.
6.
8.
1. Top
2. Detergent dispenser drawer
3. Control panel
4. Handle
5. Porthole door
6. Drain pump (behind the plinth)
7. Plinth (removable)
8. Adjustable feet (2)
1
9
23
5
6
78
10
4
Before using the appliance carefully read the Safety Instruction.
Before using the machine, it is imperative that the transport bolts are removed.
For more detailed instructions on how to remove them, see the Installation Guide.
* By selecting the cycle and excluding the spin cycle, the washing machine will drain only.
** The duration of the wash cycles can be checked on the display.
*** After programme end and spinning with maximum selectable spin speed, in default
programme setting.
****The display will show the suggested spin speed as default value.
The cycle duration indicated on the display or instruction manual is an estimate based on
standard conditions. The actual duration may vary in relation to several factors, such as the
temperature and pressure of the incoming water, ambient temperature, amount of detergent,
load quantity and type, load balancing and any additional options selected. The values given
for programmes other than the Eco 40-60 programme are indicative only.
1)Eco 40-60
-
Test wash cycle in compliance with EU Ecodesign regulation 2019/2014.
The most ecient programme in terms of energy and water consumption for washing
normally soiled cotton laundry.
Note: spin speed values shown on the display can slightly diers from the values stated in the
table.
For all testing institutes:
2) Long cotton cycle: set cycle 6 at a temperature of 40°C.
3) Long synthetics cycle: set cycle 7 at a temperature of 40°C.
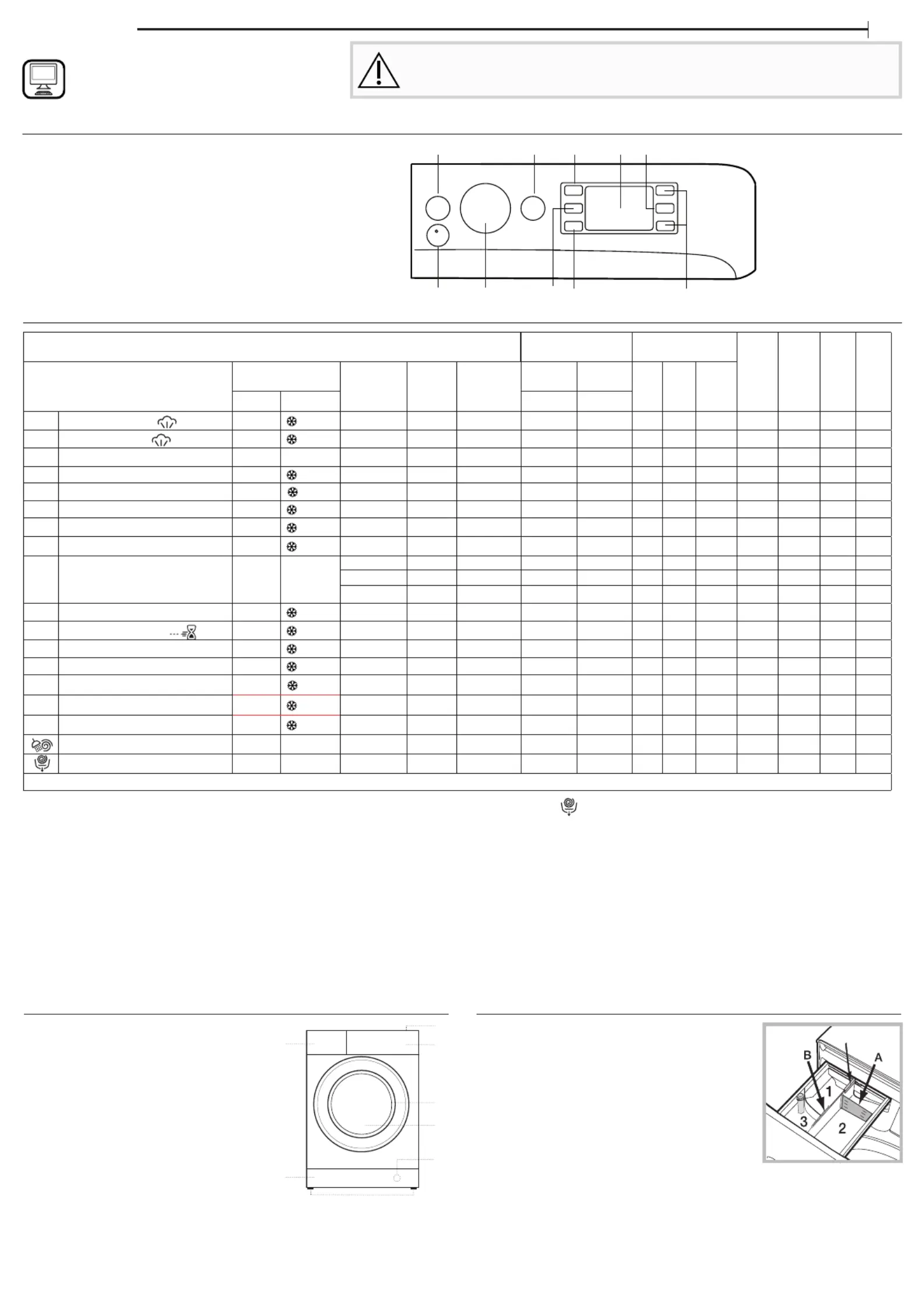
DETERGENT DISPENSER DRAWER
Compartment 1:
Do not insert detergent in this compartment.
Compartment 2: Washing detergent (powder
or liquid)
If liquid detergent is used, the removable plastic
partition A (supplied) should be used for proper
dosage.
If powder detergent is used, insert the partition
into slot .B
Compartment 3: Additives (fabric softener, etc.)
The fabric softener must never exceed the “max”
level indicated on the central pin.
! The detergent drawer is suitable only for Liquid
and Powder detergent. No Capsule Detergent allowed.
TheCapsule Detergent have to be placed into the drum before the load.
Make sure to use the correct Capsule Detergent dosage amount
recommended by Manufacturer.
! Use powder detergent for white cotton garments, for pre-washing, and
for washing at temperatures over 60°C.
! Follow the instructions given on the detergent packaging.
! To remove the drawer, press lever and pull the drawer outwards.C
C
Maximum load 8 kg
Power input in o mode 0.5 W / in left-on mode 8 W
Detergents and
Additives
Recommended
detergent
Residual
dampness %
(***)
Energy con-
sumption kWh
Total water l
Laundry
temperature °C
Wash cycle
Temperature
Maxim spin
(r.p.m.)
Max.
load
(kg)
Duration
(h : m)
Wash
Fabric
softener
Powder
Liquid
Capsule
(4)
SettingRange
23
1
Cotton
40°C10008** – 40°C
–
––––
2
Shirt
40°C6002** – 40°C
–
––––
3ARIEL PODS30°C30°C10004.5**–
––
––––
4Wool40°C
– 40°C8002**
–
–––––
520°C
20°C
– 20°C
140081:50
–
–550.1387822
6Cotton (2)40°C
– 60°C140083:55
49451.10097
7Synthetics (3)40°C
– 60°C120042:55
350.8005543
8Mixed40°C
– 40°C14008**
–
––––
9Eco 40-60 (1)
40 °C 40°C
135183:38
530.6805433
135142:48
530.4305328
135122:40
530.28037.521
10White60°C
– 90°C140082:35
551.7908955
11
Rapid 20min
20°C8001.5** – 20°C
–
–––––
11Rapid40°C
– 40°C12004**
–
–––––
11Rapid60°C
– 60°C10008**
––––
12Rapid 45min Full Load40°C
- 40°C12008**
–
–––––
13Duvet30°C
– 30°C10003.5**
–
––––
14Delicates 30°C30°C
– 30°C600 (****)1**
–
–––––
Rinse + Spin––14008**–
–––––––
Spin + Drain *––14008**–––––––––
Required dosage - Optional dosage - 4) Minimum 30°C recommended for usage of Capsule detergent.
THANK YOU FOR BUYING A INDESIT PRODUCT
In order to receive a more complete assistance,
please register your product on
www.indesit.com/register
Produktspezifikationen
| Marke: | Indesit |
| Kategorie: | Waschmaschine |
| Modell: | BWE 81496X KV UK |
Brauchst du Hilfe?
Wenn Sie Hilfe mit Indesit BWE 81496X KV UK benötigen, stellen Sie unten eine Frage und andere Benutzer werden Ihnen antworten
Bedienungsanleitung Waschmaschine Indesit
1 November 2025
17 September 2025
2 September 2025
30 August 2025
30 August 2025
27 August 2025
27 August 2025
15 August 2025
13 August 2025
12 August 2025
Bedienungsanleitung Waschmaschine
Neueste Bedienungsanleitung für -Kategorien-
3 April 2026
2 April 2026
2 April 2026
2 April 2026
2 April 2026
2 April 2026
2 April 2026
2 April 2026
2 April 2026
1 April 2026