Zurn Z8002A Bedienungsanleitung
Zurn Wasserhahn Z8002A
Lies die bedienungsanleitung für Zurn Z8002A (1 Seiten) kostenlos online; sie gehört zur Kategorie Wasserhahn. Dieses Handbuch wurde von 2 Personen als hilfreich bewertet und erhielt im Schnitt 4.4 Sterne aus 7 Bewertungen. Hast du eine Frage zu Zurn Z8002A oder möchtest du andere Nutzer dieses Produkts befragen? Stelle eine Frage
Seite 1/1

TAG _______
AquaSpec
®
is a registered trademark of Zurn Industries, LLC
©2009 Zurn Industries, LLC
ZURN INDUSTRIES, LLC
♦♦
♦♦
♦COMMERCIAL BRASS OPERATION
♦♦
♦♦
♦2640 SOUTH WORK STREET
♦♦
♦♦
♦FALCONER NY 14733
Phone: 1-800-997-3876
♦♦
♦♦
♦Fax: 1-919-775-3541
♦♦
♦♦
♦www.zurn.com
In Canada: ZURN INDUSTRIES LIMITED
♦♦
♦♦
♦3544 Nashua Drive
♦♦
♦♦
♦Mississauga, Ontario L4V1L2
♦♦
♦♦
♦Phone: 905/405-8272 Fax: 905/405-1292
_________________________________
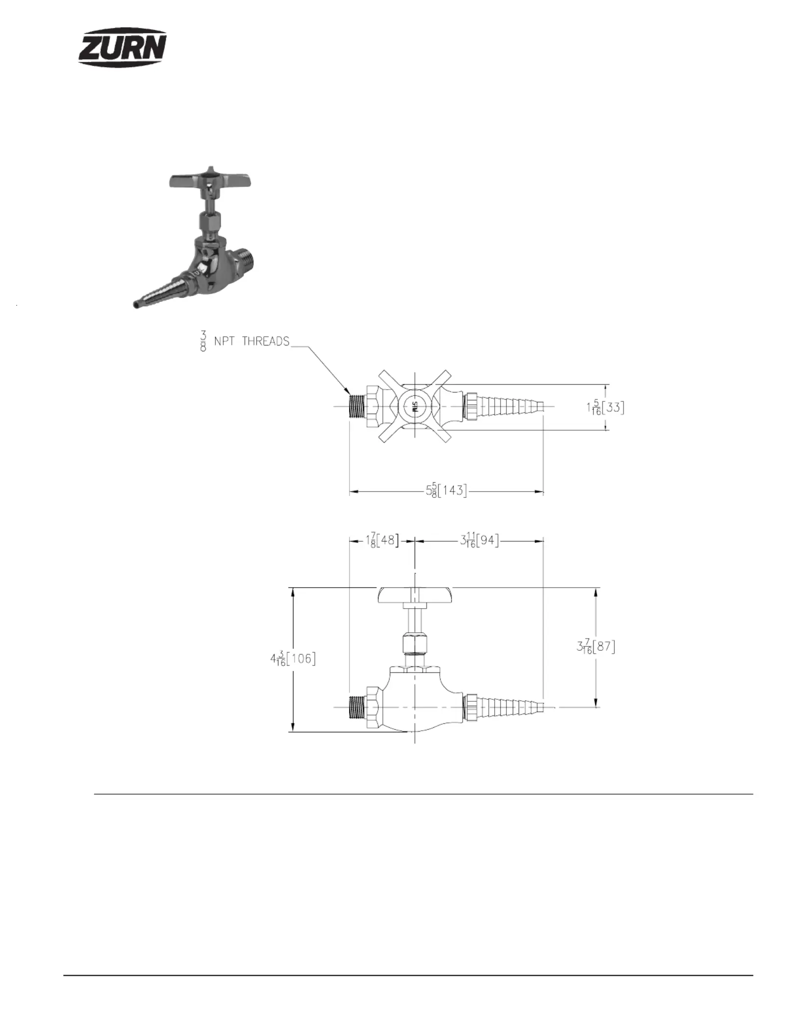
LABORATORY-GAS VALVE
Z8002A
Note: All dimensions are for reference only. Do not use for pre-plumbing.
Rev. DDate: 5/25/10C.N. No. 126231
Dwg. No. 62630Product No. Z8002A
OPTIONAL ACCESSORIES
Suffix Description
Engineering Specifications: Zurn AquaSpec
®
Z8002A
An all gas high pressure (up to 125 PSI) 3/8” NPT male inlet needle
point valve with a cross handle and a 3/8” IPS male removable
serrated nozzle outlet. Specify air, gas, vacuum or steam for
appropriate index. (see option section below) Specify when precise
control under high pressure is necessary or when rare and exotic
gases will be used.
*Oxygen service must be special ordered
__-AIR Air Index
__-GAS Gas Index
__-STEAM Steam Index
__-VAC Vacuum Index
Produktspezifikationen
| Marke: | Zurn |
| Kategorie: | Wasserhahn |
| Modell: | Z8002A |
Brauchst du Hilfe?
Wenn Sie Hilfe mit Zurn Z8002A benötigen, stellen Sie unten eine Frage und andere Benutzer werden Ihnen antworten
Bedienungsanleitung Wasserhahn Zurn
15 Februar 2026
23 August 2025
Bedienungsanleitung Wasserhahn
Neueste Bedienungsanleitung für -Kategorien-
16 Februar 2026
16 Februar 2026
16 Februar 2026
16 Februar 2026
16 Februar 2026
16 Februar 2026
15 Februar 2026
15 Februar 2026
15 Februar 2026
15 Februar 2026