American Standard Princeton T508502.002 Bedienungsanleitung
American Standard Duschsystem Princeton T508502.002
Lies die bedienungsanleitung für American Standard Princeton T508502.002 (2 Seiten) kostenlos online; sie gehört zur Kategorie Duschsystem. Dieses Handbuch wurde von 2 Personen als hilfreich bewertet und erhielt im Schnitt 4.8 Sterne aus 2 Bewertungen. Hast du eine Frage zu American Standard Princeton T508502.002 oder möchtest du andere Nutzer dieses Produkts befragen? Stelle eine Frage
Seite 1/2

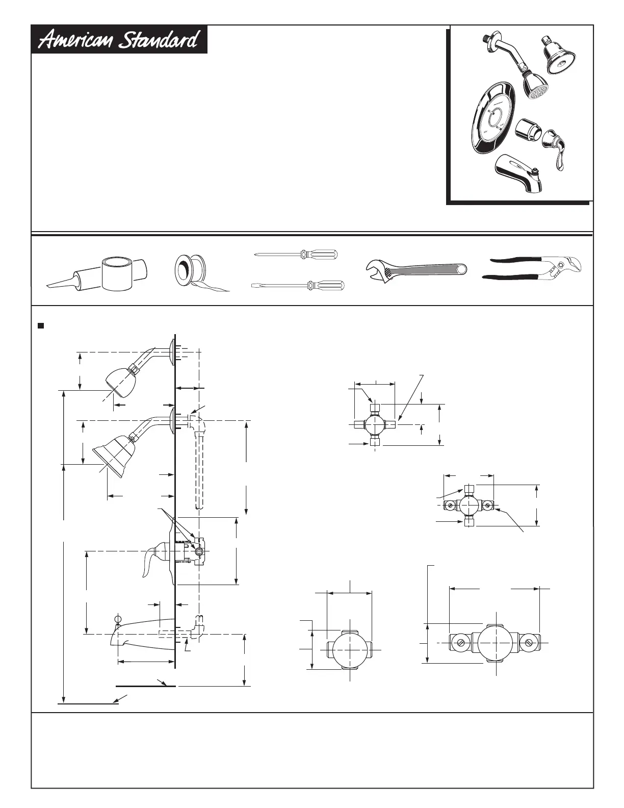
RECOMMENDED TOOLS
Flat Blade Screwdriver
Adjustable Wrench
Channel Locks
Plumbers' Putty or Caulking
Phillips Screwdriver
Teflon Tape
FINISHED
WALL
4"
TOP OF TUB RIM
BOTTOM OF TUB
74" FOR HEAD
CLEARANCE
4-7/8" REF.
3-5/8" REF.
1-5/8" TO 3-1/4"
18" OPTIONAL
5-1/8" REF.
1/2" NPT
1/2" COPPER
6-3/4"
1-1/2" REF.
8-1/2" REF.
5-1/2" REF.
OPTIONAL TO FINISHED
FLOOR USUALLY
BETWEEN 65'' AND 78'
"SEE ILLUSTRATION "
Thank you for selecting American-Standard...the benchmark of fine
quality for over 100 years.
To ensure that your installation proceeds smoothly-- please read these
instructions carefully before you begin.
Certified to comply with ANSI A112.18.1
ROUGHING-IN DIMENSIONS (For reference only)
To assure proper positioning in relation to wall, note roughing-in dimensions.
PRESSURE BALANCING
BATH AND SHOWER
TRIM KITS
M968841 REV. 1.4
PRINCETON
Installation
Instructions
T508.50X
DO NOT: CLEAN THE PRODUCT WITH SOAPS, ACID, POLISH, ABRASIVES, HARSH CLEANERS, OR A CLOTH
WITH A COARSE SURFACE.
CARE INSTRUCTIONS:
DO: SIMPLY RINSE THE PRODUCT CLEAN WITH CLEAR WATER. DRY WITH A SOFT COTTON FLANNEL CLOTH.
THREADED INLETS (STOPS)
INLETS
1/2" NPT
5-7/8"
INLETS 1/2" NPT
OUTLETS
1/2" NPT
OUTLETS
1/2" NPT
3-3/8"
3-3/8"
3-3/8"
THREADED INLETS
SHR. 1/2" NOM.
COPPER SWEAT
TUB 1/2" NOM.
COPPER SWEAT
4-1/16"
5-7/8"
INLETS
4-1/16"
4-1/16"
INLETS
1/2" NOM.
COPPER
SWEAT
SHR. 1/2" NOM.
COPPER SWEAT
TUB 1/2" NOM.
COPPER SWEAT
2"
SWEAT
INLETS
SWEAT
INLETS (STOPS)
INLETS
1/2" NOM.
COPPER
SWEAT
Produktspezifikationen
| Marke: | American Standard |
| Kategorie: | Duschsystem |
| Modell: | Princeton T508502.002 |
Brauchst du Hilfe?
Wenn Sie Hilfe mit American Standard Princeton T508502.002 benötigen, stellen Sie unten eine Frage und andere Benutzer werden Ihnen antworten
Bedienungsanleitung Duschsystem American Standard
22 Februar 2026
22 Februar 2026
22 Februar 2026
22 Februar 2026
American Standard Town Square T555730.002 Bedienungsanleitung
22 Februar 2026
22 Februar 2026
American Standard Portsmouth T420730.002 Bedienungsanleitung
22 Februar 2026
22 Februar 2026
21 Februar 2026
21 Februar 2026
Bedienungsanleitung Duschsystem
Neueste Bedienungsanleitung für -Kategorien-
18 Februar 2026
17 Februar 2026
17 Februar 2026
17 Februar 2026
16 Februar 2026
16 Februar 2026
15 Februar 2026
15 Februar 2026
15 Februar 2026
15 Februar 2026