American Standard Studio S 2548A100.020 Bedienungsanleitung
American Standard Toilette Studio S 2548A100.020
Lies die bedienungsanleitung für American Standard Studio S 2548A100.020 (2 Seiten) kostenlos online; sie gehört zur Kategorie Toilette. Dieses Handbuch wurde von 6 Personen als hilfreich bewertet und erhielt im Schnitt 4.5 Sterne aus 6 Bewertungen. Hast du eine Frage zu American Standard Studio S 2548A100.020 oder möchtest du andere Nutzer dieses Produkts befragen? Stelle eine Frage
Seite 1/2

RECOMMENDED TOOLS AND MATERIALS
Putty Knife Regular Screwdriver Adjustable Wrench
Hacksaw Wax Ring/Gasket Closet Bolts
Sealant Tape Measure Carpenters Level
ITEMS INCLUDED
x1 T-Handle
x2 T-Bolt Nuts
SAVE FOR FUTURE USE
2
1
CAUTION: PRODUCT IS FRAGILE. TO AVOID BREAKAGE AND POSSIBLE INJURY HANDLE WITH CARE!
Product names listed herein are trademarks of AS America, Inc.
© AS America, Inc. 2020
NOTE: Pictures may not exactly define contour of china and components.
Low Profile Studio
®
S Toilet
Model 2548A - Elongated, Right Height
®
with Seat
7302429-100 Rev. 1 2/20
INSTALLATION INSTRUCTIONS
CARE AND MAINTENANCE
Thank you for selecting American Standard - the benchmark of fine quality for over 140 years. To ensure this product is
installed properly, please read these instructions carefully before you begin. (Certain installations may require professional
help.) Also be sure your installation conforms to local codes.
!
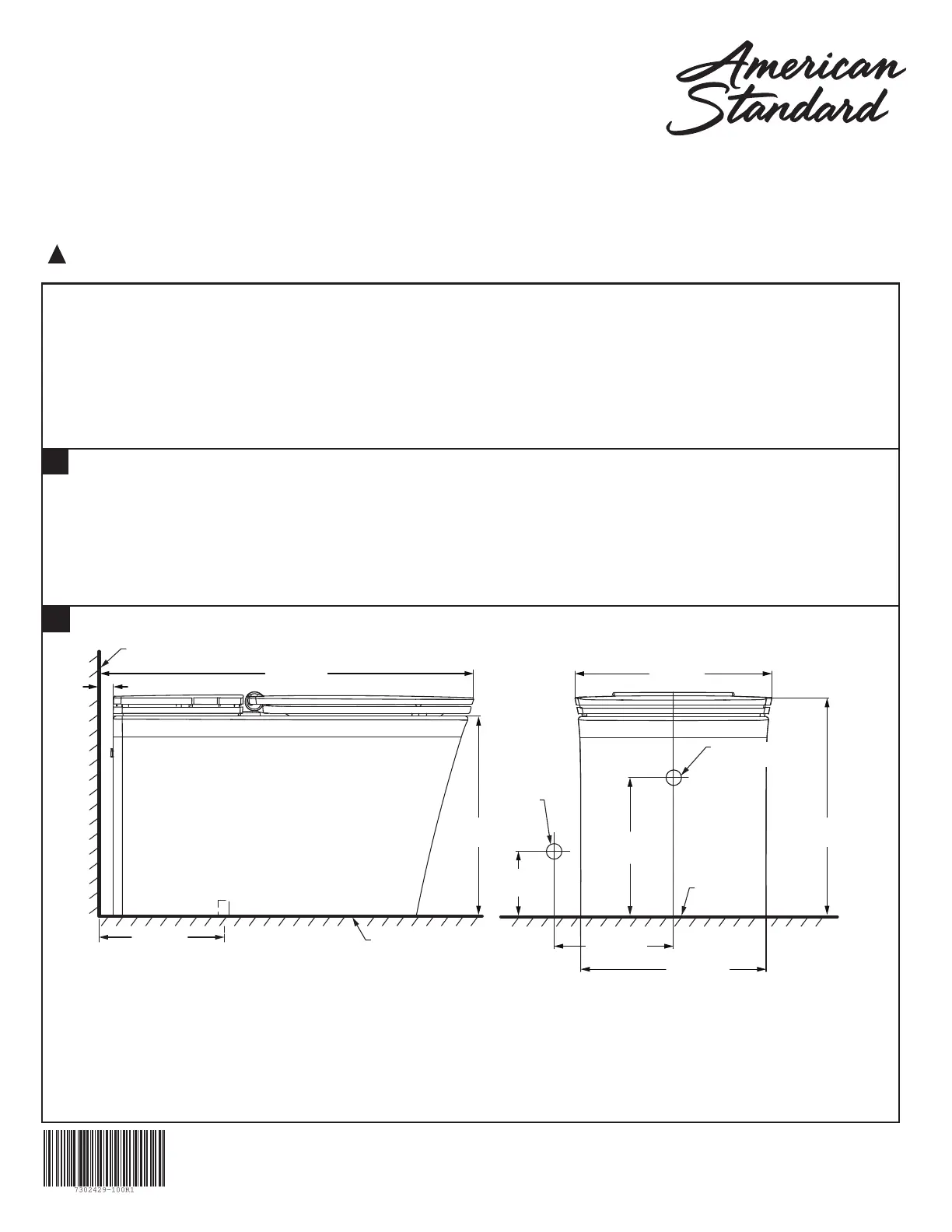
ROUGHING-IN DIMENSIONS:
NOTE: Distance from wall to closet flange centerline must be as listed below:
IMPORTANT:
Water supply on the wall is required at 10" (254mm) minimum from centerline of the toilet. See rough-in for outside toilet supply line installation.
For behind toilet or hidden supply line installation, install supply at centerline of toilet 11-1/2" (292mm) above finished floor using 'compact' 1/2"
1/4 to 1/2 turn shutoff valve.
NOTE: Depending upon the compact 1/4 turn supply valve purchased, ensure it will correctly fit and operate at the location behind the trap way
inside the toilet!
Check your supply and hose dimensions. Requires a 1/2" (13mm) Supply Valve and Hose.
The geometry of the toilet gives space for these 2 supply line installation locations.
20" x 1/2" Flexible Supply Hose for outside and inside installation of toilet supply line.
Standard 1/2" Supply valve for outside toilet installation or 1/2" 1/4-1/2 turn compact
supply valve for behind or hidden supply line installation.
REMOVE OLD TOILET
a. Close toilet supply valve and flush tank completely. Towel or sponge remaining water from tank and bowl.
b. Disconnect and remove supply line. NOTE: If replacing valve, first shut off main water supply!
c. Remove old mounting hardware, remove toilet and plug floor waste opening to prevent escaping sewer gases.
d. Remove closet bolts from flange and clean away old wax, putty, etc. from base area.
NOTE: Mounting surface must be clean and level before new toilet is installed!
Two water supply line locations are suggested with this toilet, outside of toilet or behind toilet locations.
Water supply valve will need to be relocated. Refer to roughin for water supply locations suggested.
SUPPLY
LINE
1" (25 mm)
16-1/2"
(419 mm)
31-1/8"
(790 mm)
*
5-1/2"
(140 mm)
15-3/8"
(392 mm)
16-3/8"
(416 mm)
12"
(305 mm)
*
11-1/2"
(292 mm)
FINISHED WALL
FINISHED FLOOR
FINISHED
FLOOR
*
10"
(254 mm)
18-1/2"
(468 mm)
BEHIND TOILET
SUPPLY LINE
Produktspezifikationen
| Marke: | American Standard |
| Kategorie: | Toilette |
| Modell: | Studio S 2548A100.020 |
Brauchst du Hilfe?
Wenn Sie Hilfe mit American Standard Studio S 2548A100.020 benötigen, stellen Sie unten eine Frage und andere Benutzer werden Ihnen antworten
Bedienungsanleitung Toilette American Standard
25 Februar 2026
American Standard Town Square S 2917823.020 Bedienungsanleitung
23 Februar 2026
23 Februar 2026
22 Februar 2026
22 Februar 2026
American Standard Champion 241AA104SPS.020 Bedienungsanleitung
22 Februar 2026
22 Februar 2026
21 Februar 2026
21 Februar 2026
Bedienungsanleitung Toilette
Neueste Bedienungsanleitung für -Kategorien-
25 März 2026
23 März 2026
17 März 2026
10 März 2026
4 März 2026
25 Februar 2026
24 Februar 2026
24 Februar 2026