American Standard Town Square S 2851A105 Bedienungsanleitung
American Standard Toilette Town Square S 2851A105
Lies die bedienungsanleitung für American Standard Town Square S 2851A105 (12 Seiten) kostenlos online; sie gehört zur Kategorie Toilette. Dieses Handbuch wurde von 5 Personen als hilfreich bewertet und erhielt im Schnitt 4.7 Sterne aus 5 Bewertungen. Hast du eine Frage zu American Standard Town Square S 2851A105 oder möchtest du andere Nutzer dieses Produkts befragen? Stelle eine Frage
Seite 1/12

7301450-100 Rev. 2 (3/19)
Product names listed herein are trademarks of AS America, Inc.
© AS America, Inc. 2019
RECOMMENDED TOOLS AND MATERIALS
Putty Knife
Closet Bolts
Regular Screwdriver
Wax Ring/Gasket
Adjustable Wrench
Flexible Supply Tube
Sealant
Hacksaw
Carpenters Level
Tape Measure
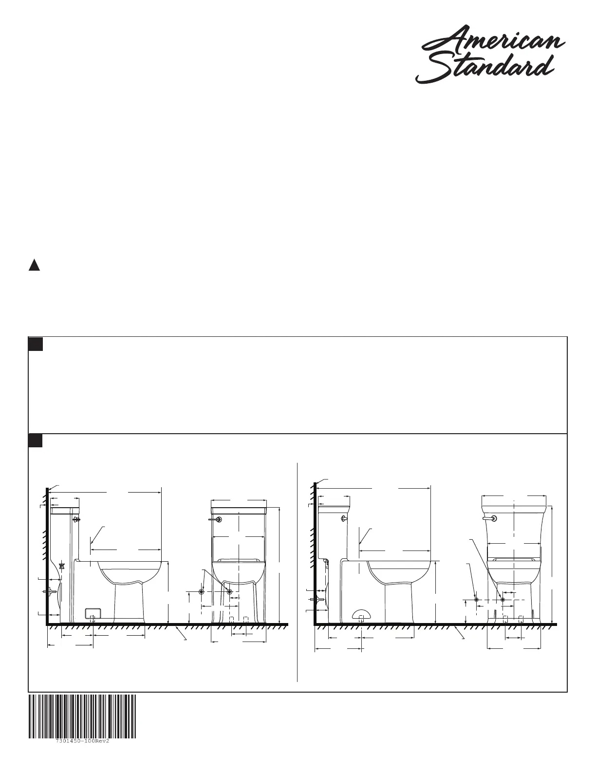
ROUGHING-IN DIMENSIONS:
REMOVE OLD TOILET
1
2
a. Close toilet supply valve and flush tank completely. Towel or sponge remaining water from tank and bowl.
b. Disconnect and remove supply line. NOTE: If replacing valve, first shut off main water supply!
c. Remove old mounting hardware, remove toilet and plug floor waste opening to prevent escaping sewer gases.
d. Remove closet bolts from flange and clean away old wax, putty, etc. from base area.
NOTE:Mounting surface must be clean and level before new toilet is installed!
SAVE FOR FUTURE USE
BOULEVARD
®
- 1.28 gpf/4.8 Lpf One-Piece Toilet
Model 2891 - Elongated Right Height
®
with Seat
TROPIC
®
- 1.28 gpf/4.8 Lpf One-Piece Toilet
Model 2786 - Elongated Right Height
®
with Seat
TOWN SQUARE
®
- 1.28 gpf/4.8 Lpf One-Piece Toilet
Model 2847 - Elongated Right Height
®
with Seat
TOWN SQUARE
®
S - 1.28 gpf/4.8 Lpf One-Piece Toilet
Model 2851A - Elongated Right Height
®
with Seat
Model 2786 - TROPIC 1.28 gpf/ 4.8 Lpf
Model 2891 - BOULEVARD 1.28 gpf/ 4.8 Lpf
CAUTION: PRODUCT IS FRAGILE. TO AVOID BREAKAGE AND POSSIBLE INJURY HANDLE WITH CARE!
NOTE: Pictures may not exactly define contour of china and components.
Thank you for selecting American Standard – the benchmark of fine quality for over 140 years. To ensure this product is installed properly, please read
these instructions carefully before you begin. (Certain installations may require professional help.) Also be sure your installation conforms to local codes.
!
INSTALLATION INSTRUCTIONS
NOTE: Distance from wall to closet flange centerline must be as listed below:
C/L OF SEAT POST
HOLES 5-1/2"
(140mm) CENTERS
29-3/4"
(756 mm)
8-1/8"
(206 mm)
3/4"
(19 mm)
18-1/2"
(470 mm)
3-1/2"
(88 mm)
8-1/2"
(217 mm)
13-1/2"
(345 mm)
14"
(354 mm)
16-3/4"
(424 mm)
30-1/2"
(778 mm)
16-1/2"
(419 mm)
12"
(305 mm)
C/L OF OUTLET AND
TOILET MTG BOLTS
FINISHED WALL
IMPORTANT: Water supply on the wall is required at 3-3/4" or 9" from centerline of the toilet (see rough-in).
First suggested position is hidden behind the toilet. The geometry of the toilet gives space for this installation.
The second suggested position is next to the toilet. Between these two positions, the space for the supply
between wall and toilet is limited to 3-1/4". In this case, check your supply and hose dimensions.
IMPORTANT: Water supply on the wall is required at 3-3/4" or 9" from centerline of the toilet (see rough-in).
First suggested position is hidden behind the toilet. The geometry of the toilet gives space for this installation.
The second suggested position is next to the toilet. Between these two positions, the space for the supply
between wall and toilet is limited to 3-1/4". In this case, check your supply and hose dimensions.
FINISHED
FLOOR
2-7/8"
(74mm)
5-1/2"
(140mm)
SUPPLY AS
REQUIRED
(position 2)
SUPPLY AS
REQUIRED
(position 1)
6"
(152mm)
3-3/4"
(95mm)
9"
(229mm)
14"
(355 mm)
29-3/4"
(756 mm)
7-1/2"
(192 mm)
3/4"
(19 mm)
18-1/2"
(470 mm)
16-1/2"
(419 mm)
14-1/2"
(368 mm)
30-1/2"
(778 mm)
13-1/2"
(345 mm)
14-1/4"
(364 mm)
8-1/2"
(217 mm)
12"
(305 mm)
C/L OF SEAT POST
HOLES 5-1/2"
(140mm) CENTERS
FINISHED WALL
3-3/8"
(86mm)
3-1/4"
(83mm)
SUPPLY
AS
REQUIRED
(position 1 or
position 2)
6"
(152mm)
5-1/2"
(140mm)
3-3/4"
(95mm)
9"
(229mm)
14"
(350 mm)
FINISHED
FLOOR
OR
Produktspezifikationen
| Marke: | American Standard |
| Kategorie: | Toilette |
| Modell: | Town Square S 2851A105 |
Brauchst du Hilfe?
Wenn Sie Hilfe mit American Standard Town Square S 2851A105 benötigen, stellen Sie unten eine Frage und andere Benutzer werden Ihnen antworten
Bedienungsanleitung Toilette American Standard
25 Februar 2026
American Standard Town Square S 2917823.020 Bedienungsanleitung
23 Februar 2026
23 Februar 2026
22 Februar 2026
22 Februar 2026
American Standard Champion 241AA104SPS.020 Bedienungsanleitung
22 Februar 2026
22 Februar 2026
21 Februar 2026
21 Februar 2026
Bedienungsanleitung Toilette
Neueste Bedienungsanleitung für -Kategorien-
25 März 2026
23 März 2026
17 März 2026
10 März 2026
4 März 2026
25 Februar 2026
24 Februar 2026
24 Februar 2026