AMX CB-MXP-07-F Bedienungsanleitung
AMX Nicht kategorisiert CB-MXP-07-F
Lies die bedienungsanleitung für AMX CB-MXP-07-F (2 Seiten) kostenlos online; sie gehört zur Kategorie Nicht kategorisiert. Dieses Handbuch wurde von 24 Personen als hilfreich bewertet und erhielt im Schnitt 4.7 Sterne aus 2 Bewertungen. Hast du eine Frage zu AMX CB-MXP-07-F oder möchtest du andere Nutzer dieses Produkts befragen? Stelle eine Frage
Seite 1/2

QUICK START GUIDE
CB-MXP-07-FFlush Rough-In Box and Cover Plate for 7” Modero X
®
Wall Mount Touch Panels
Overview
The CB-MXP-07-F Flush Mount Rough-In Box (FG5968-83) is an optional accessory for
the Modero X Series 7” Wall Mount Touch Panel. It is designed to be flush mounted in
new construction applications into solid walls (rock, concrete, adobe, cinder block) or
drywall.
The back of the Modero X Series 7” Wall Mount Touch Panel is contained within a plastic
outer housing or back box, and the back box attaches to the Rough-In Box. The Rough-
In Box kit includes a wall box, cover, and mounting screws.
Specifications
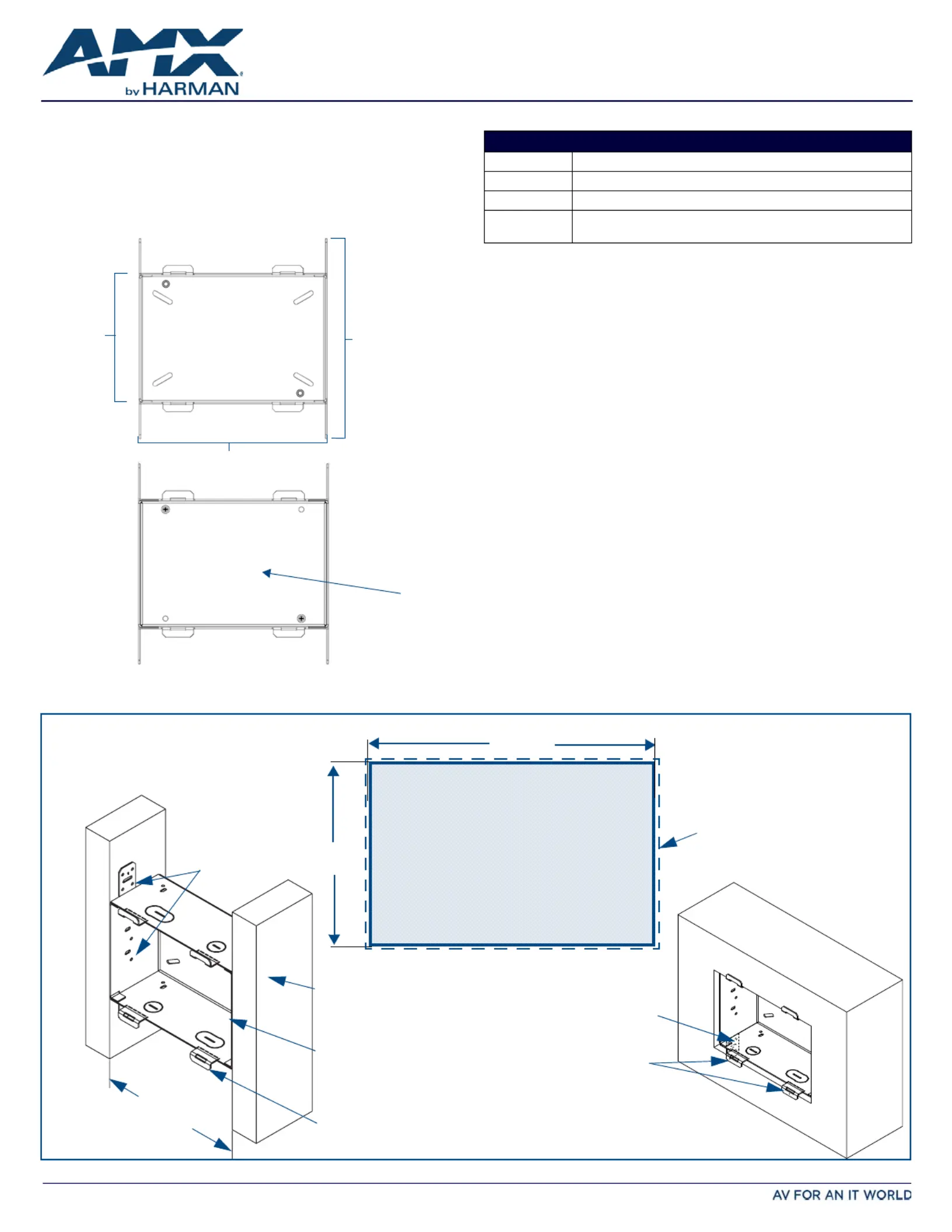
Wall Mount Install of the CB-MXP-07-F Rough-In Box
1.Remove the cover (B in FIG. 1) off of the rough-in box (A) before installation.
CAUTION: The cutout dimensions shown will allow the unit to pass through without
any dragging or interference. The outer phantom lines show the perimeter of the
mounting flange. If any part of the cutout extends up to or beyond that perimeter,
the cut edge will be visible after installation, or the unit could fall through the
opening.
Solid Wall/Old Construction
1.Cut a hole in the wall using best practices according Fig D below.
2.Insert the box into the cutout until the front tabs are seated flush (Fig D).
3.Screw or anchor to the wall through some of the various holes in the sides and
back of the box. Snap off the four tabs once box is secured and continue with step
5 below.
Drywall and Stud Mounting
1.Break the four bent tabs around the front of the box off (Fig C).
2.Mount the metal box with its leading edge flush with the stud.
3.Remove the appropriate wiring knockouts from the rough-in box to accommodate
the cables being threaded through to the wall mount touch panel.
4.Thread the incoming Ethernet and USB wiring through the knockouts. Using the
left wiring knockouts for USB connector cables and the right wiring knockouts for
the LAN/PoE In cable is very highly recommended with this installation. Leave
enough slack in the wiring to accommodate installation of the flush mount kit.
5.After drywall is installed (with cover removed), use a rotary cutting tool or
drywall saw to cut to the inside dimensions of the rough-in box. If using the
included front cover, small notches may be needed to clear the four raised tabs on
the cover. Do not shave off more drywall than necessary for clearance to insure
that the flush mount kit will cover the entire opening after installation.
NOTE: The front cover (B in FIG.1) should be installed after the appropriate wiring is
pulled to the Rough-In Box. The cover should then be removed prior to the installation of
the touch panel back box and discarded.
FIG. 1
CB-MXP-07-F FLUSH MOUNT ROUGH-IN BOX
8.19”
(20.8 cm)
A
B
7.68” (19.5 cm)
5.31”
(13.48 cm)
Rough-In Box
Rough-In Box With Cover
Cover
CB-MXP-07-F SPECIFICATIONS
Dimensions •Rough-In Box: 8.19" x 7.68" x 3.47" (20.8 cm x 19.5 cm x 8.8 cm)
Weight•Without cover: 1.80 lbs (0.82 kg)
Certifications•UL Listed
Included
Accessories:
•Cover Plate to cover Rough-In Box (62-5968-85)
•Rough-In Box Cover Mounting Screws (2) (80-5967-04)
5.347
(13.581 cm)
7.805”
(19.825 cm)
C
D
Install Flush With
Front Of Stud
NEW CONSTRUCTION
Remove Four
Front Tabs
Screws In Stud
(Pre-1/2” Wallboard)
Insert Box Until Four
Front Tabs are Flush.
Break Side Stud Tabs Off
So Box Clears Cutout.
Attach to Back or Side
of Solid Wall with Proper
Anchors. (Not Included)
SOLID WALL MOUNTING
Snap Off Once Box
is Secured.
Rough-in Box Must Be Secured
On Both Left and Right Sides
SOLID WALL CUTOUT
Outline Shows Perimeter of Flush
Mount Flange After Installation
Stud Spacing
7.68 (19.5 cm)
(Not Included)
Produktspezifikationen
| Marke: | AMX |
| Kategorie: | Nicht kategorisiert |
| Modell: | CB-MXP-07-F |
Brauchst du Hilfe?
Wenn Sie Hilfe mit AMX CB-MXP-07-F benötigen, stellen Sie unten eine Frage und andere Benutzer werden Ihnen antworten
Bedienungsanleitung Nicht kategorisiert AMX
18 September 2025
18 September 2025
18 September 2025
17 September 2025
17 September 2025
17 September 2025
16 September 2025
15 September 2025
15 September 2025
15 September 2025
Bedienungsanleitung Nicht kategorisiert
Neueste Bedienungsanleitung für -Kategorien-
3 April 2026
3 April 2026
3 April 2026
3 April 2026
3 April 2026
3 April 2026
3 April 2026
3 April 2026
3 April 2026
3 April 2026