Entes ERTC-01-DIN Bedienungsanleitung
Entes Nicht kategorisiert ERTC-01-DIN
Lies die bedienungsanleitung für Entes ERTC-01-DIN (2 Seiten) kostenlos online; sie gehört zur Kategorie Nicht kategorisiert. Dieses Handbuch wurde von 23 Personen als hilfreich bewertet und erhielt im Schnitt 5.0 Sterne aus 12 Bewertungen. Hast du eine Frage zu Entes ERTC-01-DIN oder möchtest du andere Nutzer dieses Produkts befragen? Stelle eine Frage
Seite 1/2

ERT/ERTC-01mikroiþlemci tabanlý dört fonksiyona sahip programlanabilir zaman
rölesidir.Bu dört fonksiyonÇekme Gecikmeli, Býrakma Gecikmeli, Aþaðý Sayýcý
ve Flaþördür. Çýkýþ rölesi 1 saniye ile 100 saat arasýnda deðiþen süre sonunda
kontrol edilebilir. Programlanan fonksiyon ve süre bilgileri kalýcý hafýzada saklanýr.
Fonksiyonlar ve süre bilgisi ön panelde bulunan tuþlarla kolayca programlanabilir.
ERT/ERTC-01 optik izoleli Start, Stop ve Reset giriþlerine sahiptir.
Fonksiyonlar:
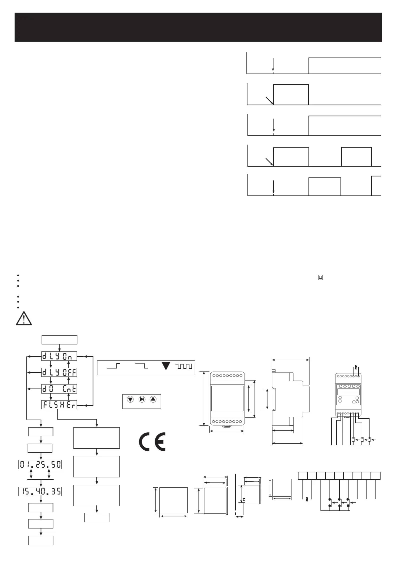
Çekme Gecikmeli :Bu modda cihaza elektrik geldiinde röle çðýkýþý verilmez.
Ayarlanan süre sonunda baþlatma sinyaliyle birlikte saymaya baþlar ve süre
sonunda röle çeker.(dLYOn)
Býrakma Gecikmeli:Bu modda cihaza elektrik geldikten sonra start iþaretiyle
birlikteröle çekilir ve ayarlanan süre sonunda röle býrakýr.(dLYOFF)
Aþaðý Sayýcý: Start giriþiyle birlikte ayarlanan süreden aþaðý doðru saymaya
baþlar. Sýfýra ulaþtýðýnda röle çeker. (dO Cnt)
Flaþör tOFF: Bu modda ayarlanan tOFF süresi boyunca röle çekili deðildir.
süresi sonunda röle çeker ve süresi boyunca röle çekili kalýr. tOn süresitOn
sonunda tekrar býrakarak tOFF süresi kadar röle býrakýlý kalýr. Bu iþlem sürekli
devam eder. Flaþörün tOFF veya tOn ile baþlamasý veya ile FlaþörStOnStOFF
modunda ayarlanabilmektedir.
Kontrol Giriþleri: Start giriþiyle sayma iþlemi baþlatýlýr. Stop Giriþiyle sayma
durdurulur ve stop tuþu basýlý olduðu süre boyunca sayma iþlemi durur. Reset
tuþu ise Çekme Gecikmeli, Býrakma Gecikmeli, Flaþör modunda süreyi sýfýrlar
ve aþaðý sayma modunda ise ayarlanan ilk deðere döner.
Fonksiyon Seçimi:
Cihazýn programlanmasý için Set tuþuna 3 saniye basýlý tutulup ana menüye girilir.
Displayde dLYOn ve ledlerden ise dLYOn mod ledi yanýp söner. Aþaðý yukarý
tuþlarý ile istenen fonksiyona gelinir. Set tuþuna tekrar basýlýr menude yanýp sönme
durur. Bu iþlem o fonksiyonun seçildiðini gösterir. Tekrar Set tuþuna basýlýr ve
önce ayarlanmýþ süre bilgisi ekranda yanýp söner aþaðý yukarý tuþlarý yardýmýyla
istenen deðere ayarlanýr. Aþaðý ve yukarý tuþlarýna sürekli basýlý tutulursa bir
sonraki digit arttýrýlýr veya azaltýlýr ve bu böylece en soldaki digite kadar ayarlanýr.
Ýstenilen süre ayarlandýktan sonra Set tuþuna tekrar basýlýr. Ekranda yanýp sönme
durur, tekrar Set tuþuna basýlýrsa seçilmiþ olan fonksiyonun ledi tam yanar ve
ayarlama iþlemi tamamlanýr. ( Not :Flaþör modunda süreyi ayarlamak için birkaç
adým daha gereklidir. Önce tOFF süresi, sonra tOn süresi ardýndan baþlatma
modu seçilir.) Start griþiyle cihaz saymaya baþlar.
Cihaz ön paneldeki tuþlar yardýmýyla da kontrol edilebilir. Set ve yukarý tuþuna
ayný anda basýldýðýnda cihaz baþlatýlýr. (Start giriþiyle ayný fonksiyon)
Set ve aþaðý tuþuna basýldýðýnda cihazýn saymasý durdurulur (Stop griþiyle ayný).
Aþaðý ve yukarý tuþuna ayný anda basýldýðýnda ise deðerler resetlenir (Reset
tuþuyla ayný).
Boyutlar (ERTC-01):
*Soðutma için vantilatör vb. gerekmez
ÇOK FONKSiYONLU ZAMAN RÖLESÝ
ERT/ERTC-01
Teknik Bilgiler:
Besleme Gerilimi (Un) : 220 V AC / 120 V AC
Çalýþma Aralýðý (
D
U): 190 - 260 V AC / 90 - 140 V AC
Çalýþma Frekansý (f): 50/60 Hz
Güç Tüketimi: < 3 VA
Çýkýþ kontaðý:1 Enversör 8A/2000VA
Hata:±%0.5 veya ±20msec.(hangisi büyükse)
Tekrarlama Hatasý:±%0.1
Reset Süresi:<= 80 msec.
Ortam Sýcaklýðý: -5°C; +50°C
Gösterge: Kýrmýzý LED gösterge
Boyutlar : PK-20 (ERTC-01) , PR-18 (ERT-01)
Cihaz Koruma Sýnýfý: Çift izolasyonlu ( )
Koruma Derecesi: IP 40 (Ön Panel)
: IP 20 (Terminal kapaðý)
Kutu Malzemesi : Yanmaz , (Yellow Sertifika no:187982)
Kablo Kesiti (Klemens için): 2.5 mm
2
Aðýrlýk: 0.25 kg
Montaj: Ray Montaj (ERTC-01) , Sýnýf III (ERT-01)
Koli Boyutu: 22 x 18 x 18.5 cm (ERTC-01)
: 37 x 21.5 x 17 cm (ERT-01)
Koli Aðýrlýðý: 4 Kg(ERTC-01) , 4.5Kg (ERT-01)
Kolideki Cihaz Sayýsý: 16
Menü butonlarý
Tip PK 20
53 mm
90 mm
45 mm
62 mm
58 mm
32 mm
48 mm
35 mm
Boyutlar (ERT-01):
TÝP PR 18 (72*72)
82.6mm
73.3mm
Duvar
82.6mm
65.5mm
50mm
72mm
66mm
Start
Reset
Stop
Un
C
NC
NO
Yardýmcý
Besleme
Çekme
Gecikmeli
Býrakma
Gecikmeli
Aþaðý
Sayýcý
Flaþör-
StOn Modu
Flaþör-
StOFF Modu
Start
Çekme
Gecikme
Zamaný
Býrakma
Gecikme
Zamaný
Start
Aþaðý
Sayýcý
Zamaný
Start
Start
tOn
Zamaný
tOn
Zamaný
tOn
Zamaný
Start
tOFF
Zamaný
tOFF
Zamaný
tOFF
Zamaný
Röle
Çýkýþý
Röle
Çýkýþý
Röle
Çýkýþý
Röle
Çýkýþý
Röle
Çýkýþý
3 sn SET
tOFF
süre ayarý
tOn
süre ayarý
StOF veya StOn
ayarý
SET
SET
SET
SET
Start
Start
Baðlantý Þemasý
(ERTC-01):
Programlama Diyagramý:
Baðlantý Þemasý (ERT-01):
Un
123456789
NC
NO
C
Start
Stop
Reset
73.3mm
66mm
72mm
66mm
YUKARIAÞAÐISET
Çekme GecikmeliBýrakma GecikmeliAþaðý SayýcýFlaþör
Fonksiyon Ledleri
Güvenli Kullaným ve Kur Ýçin Uyarýlarulum
Aþaðýdaki talimatlara uyulmamasý halinde yaralanma veya ölümle sonuçlanabilecek
durumlar ortaya çýkabilir.
Cihaz üzerindeki herhangi bir iþlemden önce tüm besleme gerilimlerini kesiniz.
Cihaz þebekeye baðlý iken ön paneli çýkarmayýnýz.
Cihazý solvent veya benzeri maddelerle temizlemeyiniz. Cihazý temizlemek için
sadece kuru bez kullanýnýz.
Cihazý çalýþtýrmadan önce baðlantýlarýnýn doðru olduðunu kontrol ediniz.
Cihazý panoya monte ediniz.
Cihazýnýzdaki herhangi bir sorunda yetkili satýcýnýzla temas kurunuz.
A2874/Rev.3
Yukarýdaki önlemlerin uygulanmamasý sonucu doðabilecek istenmeyen
durumlardan üretici firma hiç bir þekilde sorumlu tutulamaz.
Bu ürün, 30.05.2008 tarih ve 26891 sayýlý resmi gazetede yayýnlanan
EEE Yönetmeliðinin Madde 2 ve Ek-1A madde 9 kapsamýndadýr.
Produktspezifikationen
| Marke: | Entes |
| Kategorie: | Nicht kategorisiert |
| Modell: | ERTC-01-DIN |
Brauchst du Hilfe?
Wenn Sie Hilfe mit Entes ERTC-01-DIN benötigen, stellen Sie unten eine Frage und andere Benutzer werden Ihnen antworten
Bedienungsanleitung Nicht kategorisiert Entes
30 September 2025
14 September 2025
25 August 2025
25 August 2025
25 August 2025
24 August 2025
24 August 2025
24 August 2025
24 August 2025
24 August 2025
Bedienungsanleitung Nicht kategorisiert
Neueste Bedienungsanleitung für -Kategorien-
22 Januar 2026
22 Januar 2026
22 Januar 2026
22 Januar 2026
22 Januar 2026
22 Januar 2026
22 Januar 2026
22 Januar 2026
22 Januar 2026
22 Januar 2026