Graff G-11360-LM56 Bedienungsanleitung
Graff Nicht kategorisiert G-11360-LM56
Lies die bedienungsanleitung für Graff G-11360-LM56 (4 Seiten) kostenlos online; sie gehört zur Kategorie Nicht kategorisiert. Dieses Handbuch wurde von 3 Personen als hilfreich bewertet und erhielt im Schnitt 4.6 Sterne aus 8 Bewertungen. Hast du eine Frage zu Graff G-11360-LM56 oder möchtest du andere Nutzer dieses Produkts befragen? Stelle eine Frage
Seite 1/4

1
Dear CustomerEstimado Cliente
Thank you for selecting our product. We are confident we can fully satisfy Muchas gracias por elegir nuestro producto. Estamos seguros que podemos
your expectations by offering you a wide range of technologically advanced satisfacer completamente sus expectativas ofreciéndole una amplia variedad
products which directly result from our many years of experience in faucet de productos tecnológicamente avanzados que resultan direct
amente de
and fitting production.muchos años de experiencia en grifos y su producción apropiada.
ENGLISH
~
ESPANOL
This faucet complies with NSF61/9, ASME/ANSI A112.18.1
and CSA B 125 Standards.
Este grifo se encuentra conforme con losestandares de NSF61/9,
de ASME/ANSI A112.18.1 y de CSA B 125.
Installation Instructions Instrucciones de Instalación
~
ESPANOL
For easy installation of your
GRAFF faucet you will need:
To complete the project, you
should:
gather the tools and all the parts
you will need,
prepare the mounting area,
mount the faucet,
connect the supply lines,
finally test and flush the faucet.
You should have the following
tools:
adjustable wrench,
adjustable pliers,
hex key (included in the box),
®
Teflon tape.
Para terminar el proyecto, usted
debe:
r
prepare el área para el montaje,
monte el grifo,
conecte las líneas de fuente,
finalmente pruebe y limpie el grifo
con un chorro de agua.
Usted debe tener las herramientas
siguientes:
llave ajustable,
alicates acanalados,
llave hexagonal (incluido en la caja),
®
cinta adhesiva de Teflon.
ENGLISH
For care, use soft towel with soap and water only! Under no
circumstances should you use any chemicals.
ATTENTION!
ATENCIÓN!
Para el cuidado, utilice solamente una toalla suave con jabón
y aqua! Bajo ninguna circunstancia no use productos químicos.
to READ ALL the instructions completely before beginning,
to READ ALL the warnings, care and maintenance information.
Para la instalación fácil de su grifo de la GRAFF usted
necesitará:
LEER TODAS las instrucciones completamente antes de
comenzar,
LEER TODA la información sobre las advertencias, cuidado y
mantenimiento.
recolectar las herramientas y todas las piezas que usted necesitará,
Model
Modelo
IOG 5049. 00
Rev. 3 August 2018
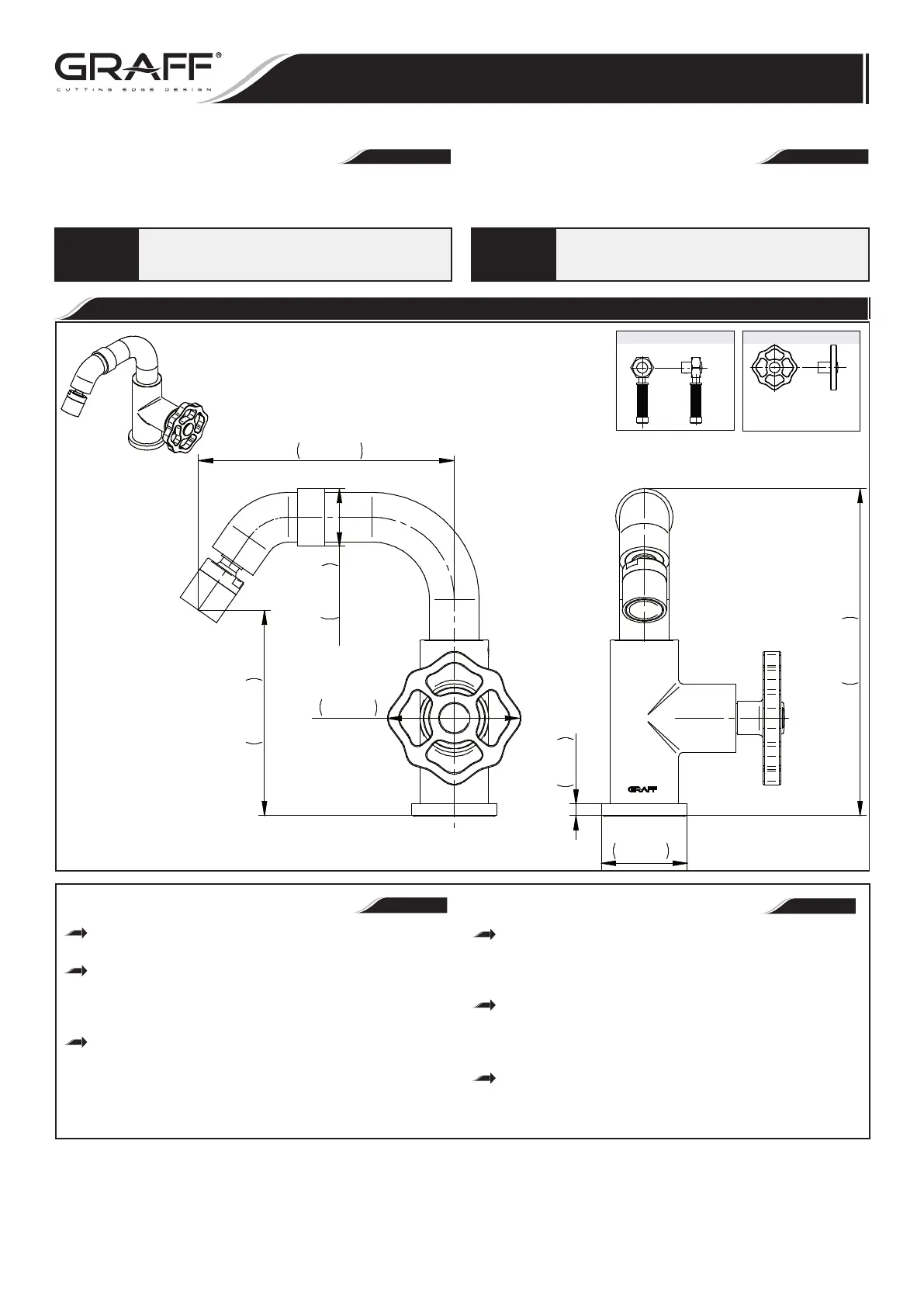
BIDET FAUCET
MEZCLADORA PARA BIDÉ
G-11360-***
4-1/4"
108mm
5-1/4"
134mm
1-3/16"
30mm
O
6-3/4"
171mm
1/4"
6mm
1-3/4"
45mm
2-3/4"
70mm
LM56C18
Produktspezifikationen
| Marke: | Graff |
| Kategorie: | Nicht kategorisiert |
| Modell: | G-11360-LM56 |
Brauchst du Hilfe?
Wenn Sie Hilfe mit Graff G-11360-LM56 benötigen, stellen Sie unten eine Frage und andere Benutzer werden Ihnen antworten
Bedienungsanleitung Nicht kategorisiert Graff
24 Februar 2026
13 Februar 2026
11 Februar 2026
10 Februar 2026
10 Februar 2026
10 Februar 2026
10 Februar 2026
9 Februar 2026
8 Februar 2026
6 Juli 2025
Bedienungsanleitung Nicht kategorisiert
Neueste Bedienungsanleitung für -Kategorien-
24 Februar 2026
24 Februar 2026
24 Februar 2026
24 Februar 2026
24 Februar 2026
24 Februar 2026
24 Februar 2026
24 Februar 2026
24 Februar 2026
24 Februar 2026