Jindara Kimberley Mk2 Bedienungsanleitung
Lies die bedienungsanleitung für Jindara Kimberley Mk2 (2 Seiten) kostenlos online; sie gehört zur Kategorie Heizung. Dieses Handbuch wurde von 21 Personen als hilfreich bewertet und erhielt im Schnitt 4.6 Sterne aus 11 Bewertungen. Hast du eine Frage zu Jindara Kimberley Mk2 oder möchtest du andere Nutzer dieses Produkts befragen? Stelle eine Frage
Seite 1/2

Compact Zero Clearance
Cabinet Installation
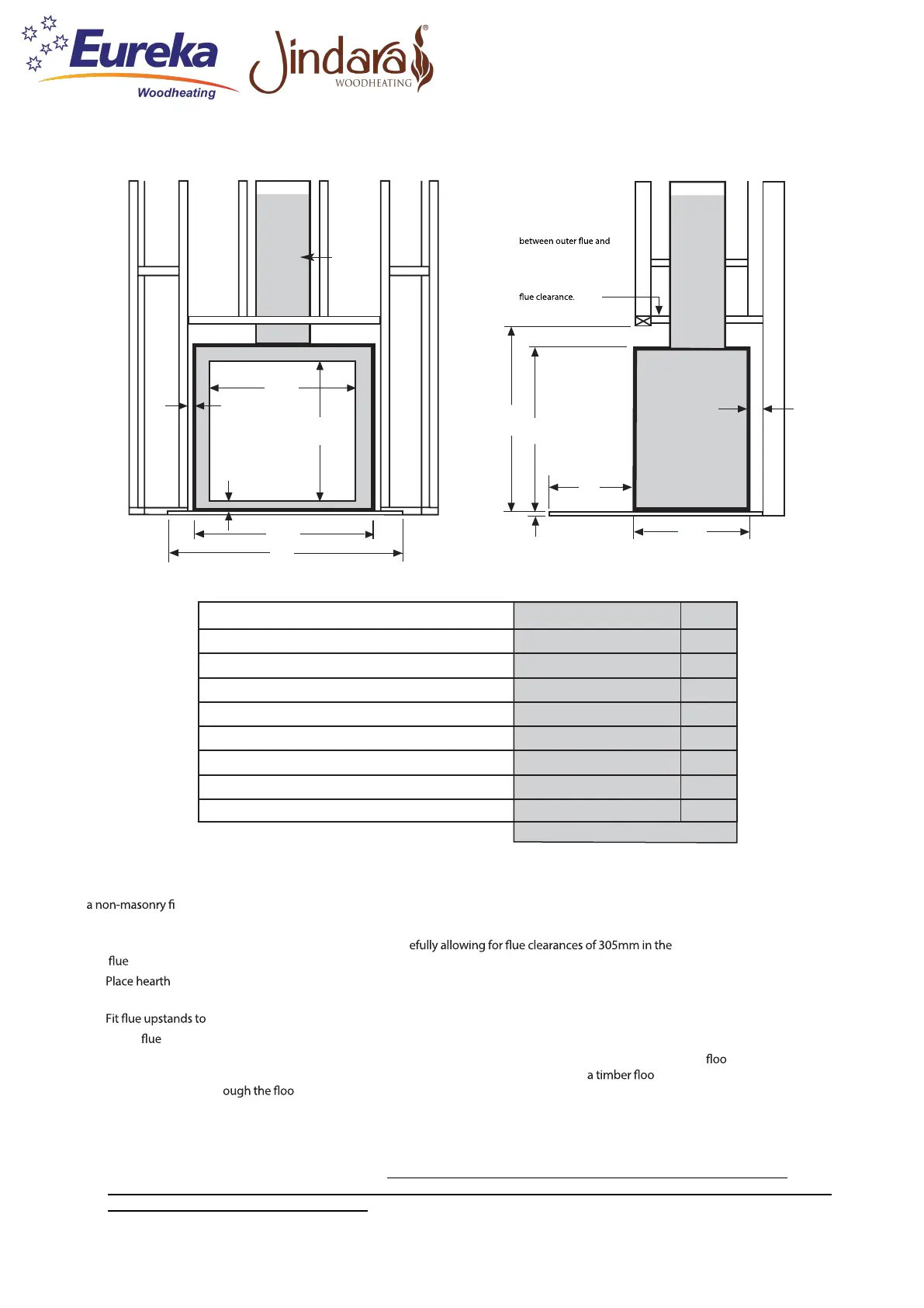
ZCC Part No. 225333
Installation notes:
The Gason Zero Clearance Cabinet is an approved cabinet that allows for Eureka/Jindara Insert woodheaters as stated above to be installed within
replace in accordance with AS2918:2001.
This can be achieved by following the installation guidelines listed below.
•Select the position that you wish to to install your ZCC , car
roof cavity (The outer
being 255mm requires a 25mm clearance on either side to combustibles, making overall clearance 305mm).
•
•.Note: Line up centre holes with corresponding holes depending on model. Refer to diagram on sheet 2.
•Fit the
to the upstands and terminate at the required height above the roof line.
•Fit 300mm x 100mm vermin proof vent directly behind where the will be located, as near as practicable to the
r. T
his vent will
allow air access to the zero box either from another room or external air. Note, if installed on
r, an additional two vents are
required. i.e. Either thr
r, one each side of the zero box, or alternatively, through the side wall(s), if applicable.
•Build your frame around the
mantaining the clearances listed above.
•
•Cover the rest of the frame to suit your requirments with plaster, timber, MDF etc.
•
•Install the mantel if required. Note if mantle is made out of a combustible material the following dimensions must be adhered to.
All dimensions are minimum and must under no circumstances be reduced. Gason Pty Ltd accepts no liability whatsoever for their
interpretation of AS2918:2001.
Sheet 1 NEXT 2 GPN 231080 Rev.A
Sheet 1 NEXT 2 GPN 231080 Rev.A
545
763
Zero
Clearance
Box
To suit Insert models: Opal SRS4, Riverina SRS3,
D
A min. 60mm gap for
Opal SRS4/Riverina SRS3
and 120mm gap for
Stockade SRS5/Barossa SRS3
timber stud.
The timber stud may need
to be notched out to allow
for the minimum required
Stockade SRS5, Barossa SRS3, Kimberley Mk2, Hamersley Mk2
Federation Mk2 & Victorian Insert
NOTE:
F
Tripleskin
Flue
690
660
836
30
E
MODEL
A B C D E F G H I J
Opal
Riverina
Stockade
Barossa
Kimberley
Hamersley
Federation
Victorian
A
C
Hearth Width
12 570 890 810 40 20 1040 1100 50 250 530
12 550 950 810 40 20 1340 1390 50 250 510
18 615
18 705 1000
All dimensions in millimetres, images not to scale
Clearance to combustibles
Insert your chosen appliance into the zero cabinet. Note: p1-x2 galvanized c-section brackets supplied are required to centralise
Opal/Riverina, Stockade/Barossa. For installation of Kimberley, Hamersley, Federation and Victorian, appliances must sit on c-section
to ensure correct installation height is achieved. Fit active ue and cowl once appliance is in position.
See oversheet for dimensions.
(non-combustible cement sheet, villaboard or similar) in the position desired for the ZCC, ensuring hearth will
1140 25 250 550
940 1063 100 50 1050
B
12 570 890 810 40 20 1040 1100 50 250 530
12 550 950 810 40 20 1340 1390 50 250 510
18 705 1000
18 705 1000
1063 100 50 975 1225 150 250 600
1063 100 50 975 1225 150 250 600
1063 100 50 975 1225 150 250 600
Cover the front face of framing with a minimum 4mm cement sheet or non-combustible material.
A. F.
mm in front
of unit
Hearth depth
the ZCC
ZCC
ZCC
extend fully underneath ZCC as shown above for relevent model. Place the ZCC into position.
Produktspezifikationen
| Marke: | Jindara |
| Kategorie: | Heizung |
| Modell: | Kimberley Mk2 |
Brauchst du Hilfe?
Wenn Sie Hilfe mit Jindara Kimberley Mk2 benötigen, stellen Sie unten eine Frage und andere Benutzer werden Ihnen antworten
Bedienungsanleitung Heizung Jindara
21 August 2024
20 August 2024
19 August 2024
18 August 2024
16 August 2024
14 August 2024
14 August 2024
13 August 2024
11 August 2024
11 August 2024
Bedienungsanleitung Heizung
Neueste Bedienungsanleitung für -Kategorien-
21 Januar 2026
21 Januar 2026
20 Januar 2026
13 Januar 2026
13 Januar 2026
12 Januar 2026
11 Januar 2026
11 Januar 2026
11 Januar 2026