American Standard Moments T506507.002 Bedienungsanleitung
American Standard Duschsystem Moments T506507.002
Lies die bedienungsanleitung für American Standard Moments T506507.002 (3 Seiten) kostenlos online; sie gehört zur Kategorie Duschsystem. Dieses Handbuch wurde von 2 Personen als hilfreich bewertet und erhielt im Schnitt 4.9 Sterne aus 8 Bewertungen. Hast du eine Frage zu American Standard Moments T506507.002 oder möchtest du andere Nutzer dieses Produkts befragen? Stelle eine Frage
Seite 1/3

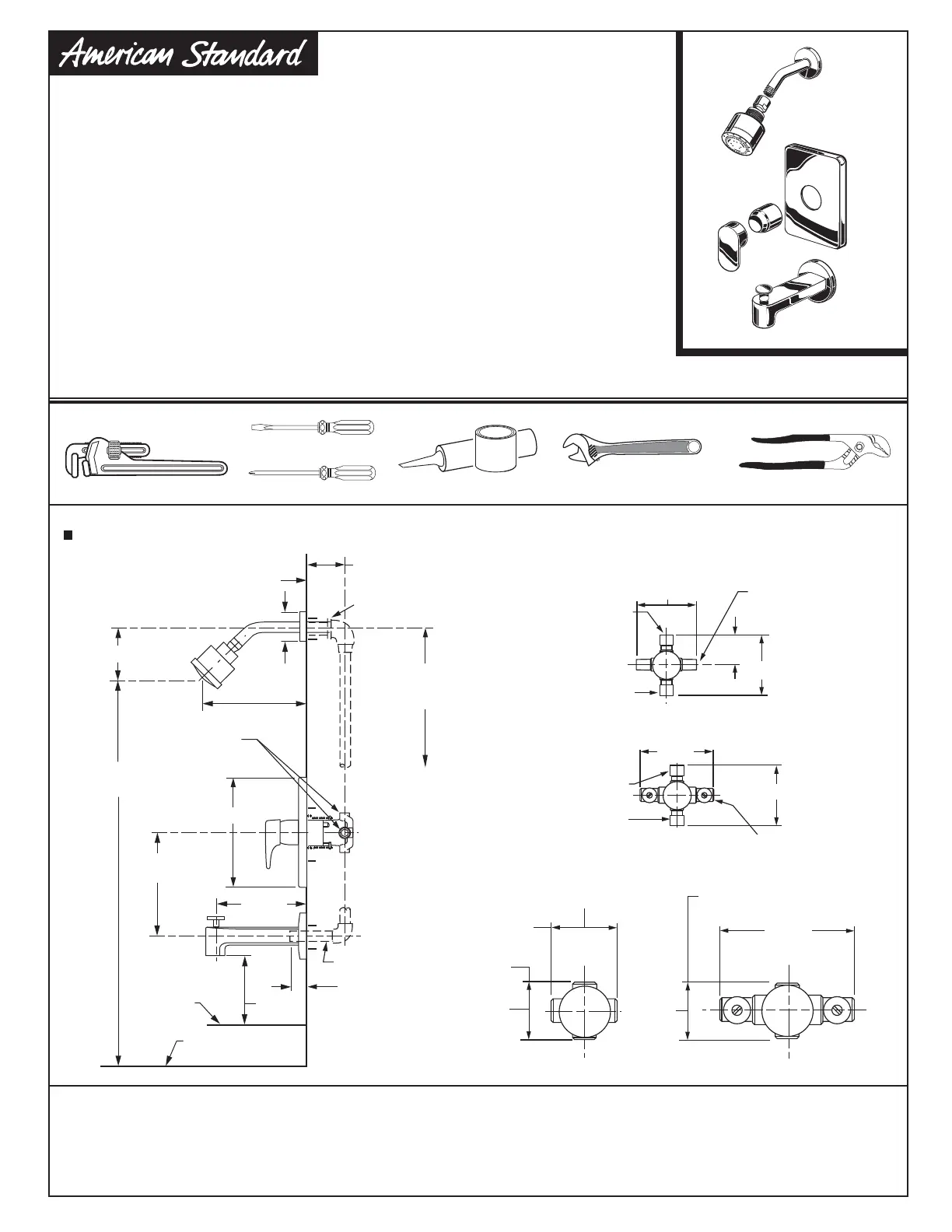
5-5/8" REF.
T506.50X
To assure proper positioning in relation to wall, note
roughing-in dimensions.
ROUGHING-IN DIMENSIONS
Certified to comply with ANSI A112.18.1
Installation
Instructions
Recommended Tools
Flat Blade Screwdriver
Adjustable Wrench
Channel Locks
Plumbers' Putty or Caulking
Phillips Screwdriver
BOTTOM OF
TUB
74" FOR
HEAD CLEARANCE
FINISHED WALL
8-1/8" REF.
4"
6-1/2"
18"
OPTIONAL
TOP OF
TUB RIM
Pipe Wrench
BATH/SHOWER TRIM KIT
8-3/8"
2-3/8"
MOMENTS
THREADED INLETS (STOPS)
INLETS
1/2" NPT
5-7/8"
OUTLETS
1/2" NPT
3-3/8"
INLETS 1/2" NPT
1/2" NPT
OUTLETS
1/2" NPT
3-3/8"
3-3/8"
THREADED INLETS
INLETS
4-1/16"
4-1/16"
INLETS
1/2" NOM.
COPPER
SWEAT
SHR. 1/2" NOM.
COPPER SWEAT
TUB 1/2" NOM.
COPPER SWEAT
2"
SWEAT
INLETS
SHR. 1/2" NOM.
COPPER SWEAT
TUB 1/2" NOM.
COPPER SWEAT
4-1/16"
5-7/8"
SWEAT
INLETS (STOPS)
INLETS
1/2" NOM.
COPPER
SWEAT
"SEE ILLUSTRATION "
1/2" NPT
1-1/2" REF.
3/4"" TO 2-3/8"
SHR
TUB
OPTIONAL TO FINISHED
FLOOR USUALLY
BETWEEN 65'' AND 80''
M968951 Rev. 1.4
DO: SIMPLY RINSE THE PRODUCT CLEAN WITH CLEAR WATER. DRY WITH A SOFT COTTON FLANNEL CLOTH.
DO NOT: DO NOT CLEAN THE PRODUCT WITH SOAPS, ACID, POLISH, ABRASIVES, HARSH CLEANERS, OR A
CLOTH WITH A COARSE SURFACE.
CARE INSTRUCTIONS:
Thank you for selecting American-Standard...the benchmark
of fine quality for over 100 years.
To ensure that your installation proceeds smoothly--please
read these instructions carefully before you begin.
Produktspezifikationen
| Marke: | American Standard |
| Kategorie: | Duschsystem |
| Modell: | Moments T506507.002 |
Brauchst du Hilfe?
Wenn Sie Hilfe mit American Standard Moments T506507.002 benötigen, stellen Sie unten eine Frage und andere Benutzer werden Ihnen antworten
Bedienungsanleitung Duschsystem American Standard
19 Februar 2026
19 Februar 2026
19 Februar 2026
American Standard Town Square T555740.002 Bedienungsanleitung
19 Februar 2026
19 Februar 2026
19 Februar 2026
19 Februar 2026
19 Februar 2026
19 Februar 2026
19 Februar 2026
Bedienungsanleitung Duschsystem
Neueste Bedienungsanleitung für -Kategorien-
18 Februar 2026
17 Februar 2026
17 Februar 2026
17 Februar 2026
16 Februar 2026
16 Februar 2026
15 Februar 2026
15 Februar 2026
15 Februar 2026
15 Februar 2026