ThermaSol HVLSRSQ-PG Bedienungsanleitung
ThermaSol Duschsystem HVLSRSQ-PG
Lies die bedienungsanleitung für ThermaSol HVLSRSQ-PG (56 Seiten) kostenlos online; sie gehört zur Kategorie Duschsystem. Dieses Handbuch wurde von 2 Personen als hilfreich bewertet und erhielt im Schnitt 4.9 Sterne aus 7 Bewertungen. Hast du eine Frage zu ThermaSol HVLSRSQ-PG oder möchtest du andere Nutzer dieses Produkts befragen? Stelle eine Frage
Seite 1/56

92040_ NC
HVLSRSQ-
HVLSRSQ-
HVLSRSQ-
HVLSRSQ-HVLSRSQ-
XX
XX
XX
XXXX
Hydrovive
Hydrovive
Hydrovive
Hydrovive Hydrovive
*Rough-In Guide*
*Rough-In Guide*
*Rough-In Guide*
*Rough-In Guide**Rough-In Guide*
Audio
•Amplifier: 100Watt RMS, built in Digital Signal Processor
•Built-in Bluetooth v4.2
•1” Titanium Dome Tweeter with Ferro fluid cooled aluminum voice coil2-
•4” 1- woofer
•4” passive radiator1-
Lighting
•200 Full-color luminous LED (R,G,B) ,W
•Color Changing “Mood Lighting”
•Preset Chromatherapy Chakras
•Custom user programmable “any color”
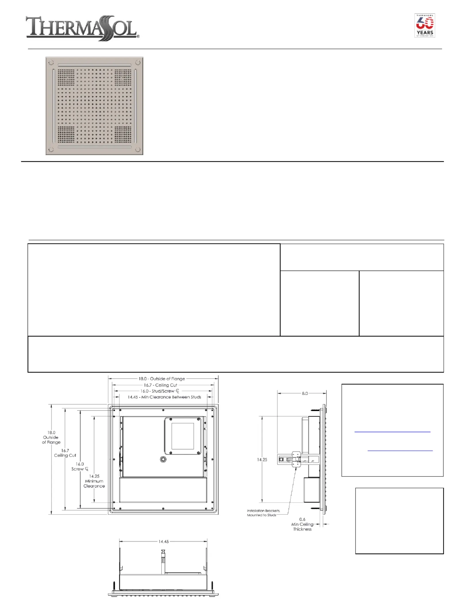
Installation Notes:
Overall size is 18 SQ .0”X 8.0 tall and requires approx. 16.7 16.7 cutout in the ””X ”
shower ceiling. The unit is self-contained as one piece and extends into the ceiling
space 8 clearance. .0” plus plumbing connectionUse a 3/8” compression fitting
and a flexible potable waterline to connect to the Rainhead. Use only potable
water and approved plumbing fittings for any shower connection. Refer to
ThermaSol Installation Instructions for full-sized template and detailed a
installation and operation instructions.
Shipping Information:
Weight……….37 lbs. ..
Length……………20 in.
Width…………....20 in.
Height…………...10 in.
Finish Chart:
Select desired finish and replace XX with code.
For any further assistance
please contact ThermaSol
at 800.776.0711 or
Visit www.thermasol.com
for a complete product
definition
SPECIFICATIONS Light and Sound Rain System –
Construction……………………………………….…Machined Brass
ControllabilityThermaTouch Series Controls ………….……………
Function Lights……………….……....200 -color luminous LEDFull
Rainhead Water Supply. 3/8- 1.8GPM …..……………..”, 4080PSI,
Water Jets……………………………….………………………….…300
CEC Approved
PC = Polished Chrome
SC = Satin Chrome
PB = Polished Brass
SB = Satin Brass
AB = Antique Brass
COP = Polished Copper
ACOP = Antique Copper
PN = Polished Nickel
SN = Satin Nickel
BN = Black Nickel
MB = Matte Black
AN = Antique Nickel
PG = Polished Gold
ORB = Oil Rubbed Bronze
WHT = White
Product Specification:
A self-contained, Light and Sound Rainhead module that creates high-intensity chromatherapy lights and sounds. Rainhead is rated at 1.8
GPM Max. at 80 PSI and requires a separate diverter port with shut off valve. Powered by: provided 24V DC, 30 Watts power supply.
Produktspezifikationen
| Marke: | ThermaSol |
| Kategorie: | Duschsystem |
| Modell: | HVLSRSQ-PG |
Brauchst du Hilfe?
Wenn Sie Hilfe mit ThermaSol HVLSRSQ-PG benötigen, stellen Sie unten eine Frage und andere Benutzer werden Ihnen antworten
Bedienungsanleitung Duschsystem ThermaSol
8 Februar 2026
3 Februar 2026
Bedienungsanleitung Duschsystem
Neueste Bedienungsanleitung für -Kategorien-
9 Februar 2026
9 Februar 2026
9 Februar 2026
8 Februar 2026
8 Februar 2026
8 Februar 2026
8 Februar 2026
8 Februar 2026
7 Februar 2026
7 Februar 2026