American Standard Town Square T555502.002 Bedienungsanleitung
American Standard Duschsystem Town Square T555502.002
Lies die bedienungsanleitung für American Standard Town Square T555502.002 (4 Seiten) kostenlos online; sie gehört zur Kategorie Duschsystem. Dieses Handbuch wurde von 3 Personen als hilfreich bewertet und erhielt im Schnitt 4.6 Sterne aus 3 Bewertungen. Hast du eine Frage zu American Standard Town Square T555502.002 oder möchtest du andere Nutzer dieses Produkts befragen? Stelle eine Frage
Seite 1/4

TOWN SQUARE
®
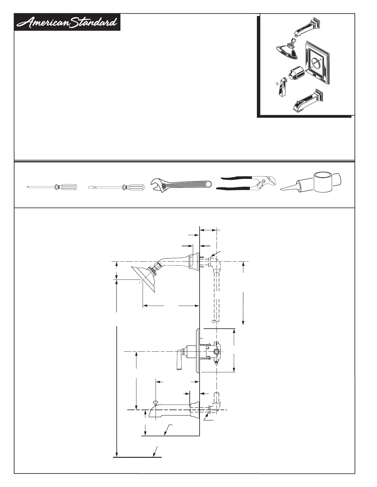
Required Tools
Adjustable WrenchChannel LocksFlat Blade ScrewdriverPlumbers' Putty or CaulkingPhillips Screwdriver
BATH/SHOWER TRIM KIT
1-5/8" TO 3-1/4"
FINISHED WALL
BOTTOM OF
TUB
74" FOR
HEAD CLEARANCE
2" REF.
18"
OPTIONAL
1/2" I.P.S.
1
7-5/8"
OPTIONAL TO
FINISHED FLOOR
USUALLY BETWEEN
65'' AND 78''
8" REF.
4"
TOP OF
TUB RIM
1-3/4" REF.
1/2" COPPER
7-1/4" REF.
Certified to comply with ANSI A112.18.1
T555.500
T555.501
T555.502
Installation
Instructions
ROUGHING-IN DIMENSIONS
■To assure proper positioning in relation to
wall, note roughing-in dimensions.
PRESSURE BALANCING BATH
AND SHOWER TRIM KIT
Thank you for selecting American-Standard...the benchmark
of fine quality for over 100 years.
To ensure that your installation proceeds smoothly--please
read these instructions carefully before you begin.
M968235 Rev. 2.0 (4/15)
Produktspezifikationen
| Marke: | American Standard |
| Kategorie: | Duschsystem |
| Modell: | Town Square T555502.002 |
Brauchst du Hilfe?
Wenn Sie Hilfe mit American Standard Town Square T555502.002 benötigen, stellen Sie unten eine Frage und andere Benutzer werden Ihnen antworten
Bedienungsanleitung Duschsystem American Standard
21 Februar 2026
21 Februar 2026
21 Februar 2026
21 Februar 2026
21 Februar 2026
21 Februar 2026
American Standard Portsmouth T415502.002 Bedienungsanleitung
21 Februar 2026
American Standard Town Square T555502.002 Bedienungsanleitung
21 Februar 2026
American Standard Colony Pro T075508.278 Bedienungsanleitung
21 Februar 2026
21 Februar 2026
Bedienungsanleitung Duschsystem
Neueste Bedienungsanleitung für -Kategorien-
18 Februar 2026
17 Februar 2026
17 Februar 2026
17 Februar 2026
16 Februar 2026
16 Februar 2026
15 Februar 2026
15 Februar 2026
15 Februar 2026
15 Februar 2026